Téléphone
  Expertise
  Contactez-nous
  Téléphonez-nous
  Tenez-moi au courant
Facebook  
Instagram  
 4050 CHAUDFONTAINE
295 000 €

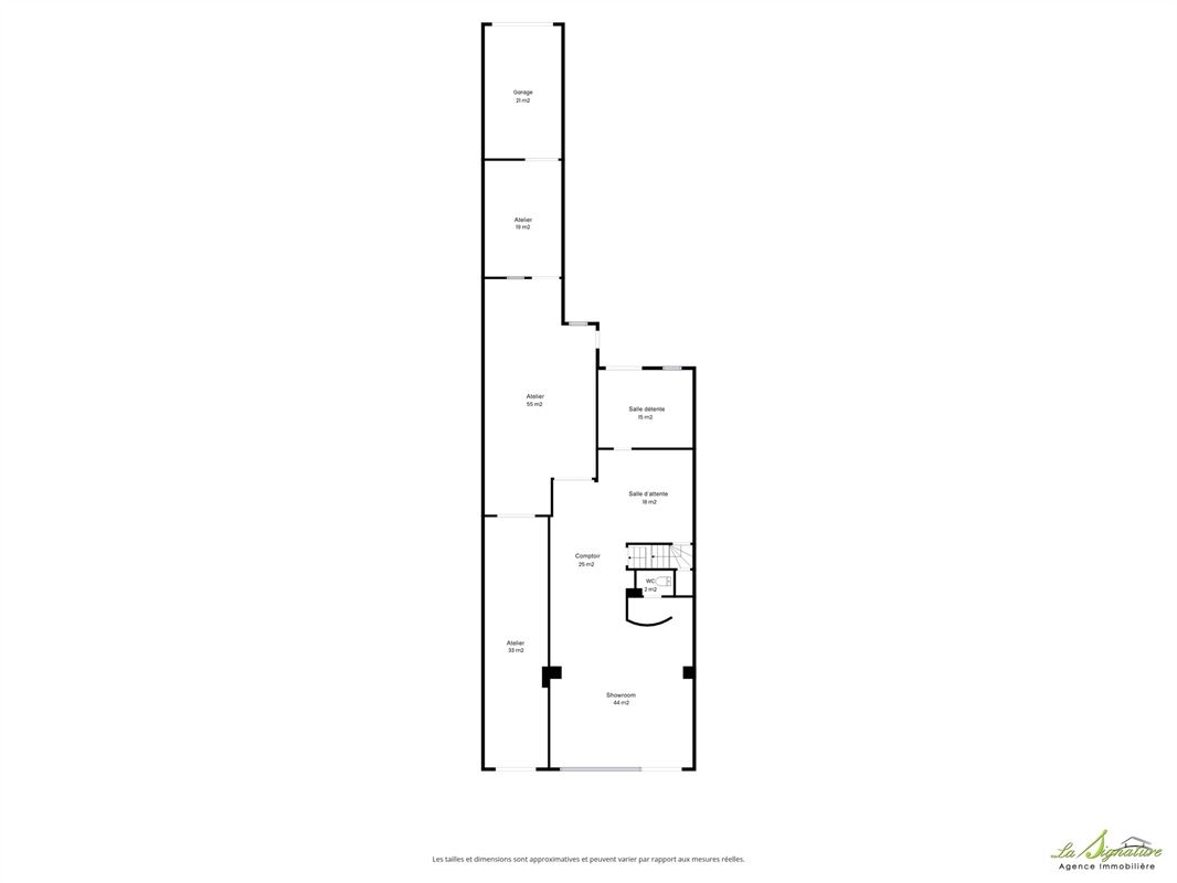
Un commerce, un appartement et un entrepôt de +- 130m²

La Signature Immobilière vous présente cet immeuble mixte reprenant un commerce de 105m², un appartement de 70m² et un entrepôt d'une superficie de +- 130m² avec accès indépendant à l'avant comme à l'arrière. Le bien se compose comme suit: Rez-de-chaussée: Showroom de 87m² avec toilette indépendante - Bureau donnant accès au jardin - Un entrepôt de +-130m² ; 1er étage: un appartement qui se compose d'un séjour de 26m² - une chambre de 15m² - Une cuisine - Une salle de bain - Divers: Superficie totale : 355m² - RC: 1685€ - Chaudière mazout - Châssis bois double vitrage - PEB G n° 20260130024677 - Idéal pour un investissement - Plans et documents téléchargeables sur notre site internet. Pour une question ou une visite, n'hésitez pas à nous contacter au 04/223.30.30 ou WWW.LASIGNATURE.BE
Revenu cadastral
 1685 €
Nombre de chambre(s)
 1
Nombre de salle(s) de bain
 1
Garage(s)
 1
Adresse
 Route de Beaufays 17
4050 CHAUDFONTAINE

Général

Superficie habitable
355 m²
Superficie living
26 m²
Superficie totale
355 m²
Superficie terrain
353 m²
Année de construction
1935

Confort/Equipements

Chauffage
C.C. au mazout
Orientation façade arrière
Sud-est
Type de toit
Toit en mansarde
Couverture de toit
Tuiles
Cuisine
Armoires seulement
Vitrage
Double
Type de vitrage
bois

Composition

  • Espace commercial:89 m2
  • Bureau:15 m2
  • Entrepôt:128 m2
  • Jardin:70 m2
  • Living:26 m2
  • Cuisine:15 m2
  • Chambre à coucher 1:15 m2
  • Salle de bains 1:10 m2
  • Hall d'entrée:57 m2

Informations transmises sous réserve d’erreurs et non contractuelles.

Certificat energétique

PEB n°
20260130024677
E spec
599 kWh/m² par an
E total
43314 kWh/an
Emission CO2
148 Kg co2/m² par an



Informations financières

Héritages
Non

Street view

Google map