Téléphone
  Expertise
  Contactez-nous
  Téléphonez-nous
  Tenez-moi au courant
Facebook  
Instagram  
 4100 SERAING
190 000 €

Maison

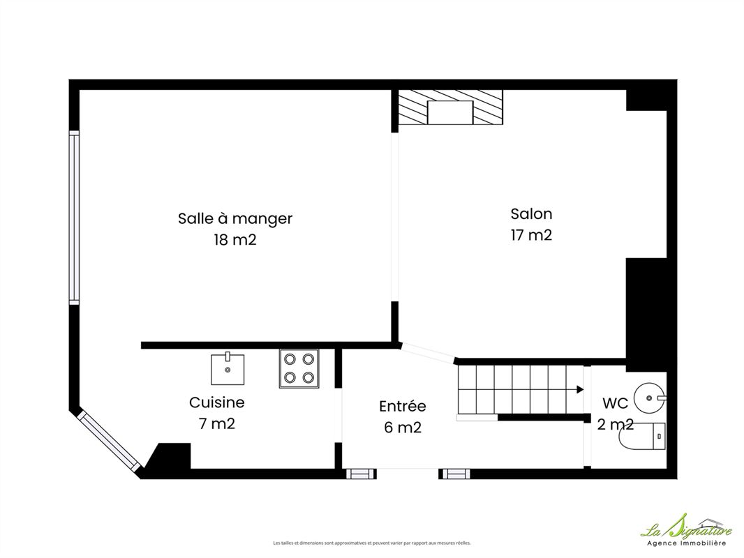
La Signature Immobilière vous présente cette maison 2 chambres en parfait état - Idéalement située ce bien vous permettra de vous installer sans faire de travaux de rénovation important - Elle se compose comme suit : REZ-DE-CHAUSSÉE : Hall d'entrée avec toilette - Cuisine - Lumineux séjour de 35 m² - PREMIER ÉTAGE : Hall de nuit - Chambre 1 (19m²) - Chambre 2 (17m²) - Salle de bain - Toilette séparée - DEUXIÈME ÉTAGE : Grenier aménageable de 34m² (1 à 2 chambres supplémentaires) - DIVERS : Caves - Nouvelle toiture - Électricité en bon état - Châssis double vitrage - Chauffage central gaz (en ordre) - PEB : E n°20250925006759 - A VOIR !! - Pour plus d'informations, n'hésitez pas à nous joindre au 04/223.30.30.
Revenu cadastral
 530 €
Nombre de chambre(s)
 2
Nombre de salle(s) de bain
 1
Adresse
 Rue Beaujean 50
4100 SERAING

Général

Superficie habitable
130 m²
Superficie living
35 m²
Superficie totale
130 m²
Superficie terrain
56 m²

Confort/Equipements

Chauffage
C.C. au gaz
Type de toit
Toit en mansarde
Couverture de toit
Tuiles
Cuisine
Armoires et appareils
Vitrage
Double

Composition

Non communiqué

Informations transmises sous réserve d’erreurs et non contractuelles.

Certificat energétique

PEB n°
20250925006759
E spec
409 kWh/m² par an
E total
43833 kWh/an
Emission CO2
75 Kg co2/m² par an



Informations financières

Héritages
Non

Street view

Google map