Téléphone
  Expertise
  Contactez-nous
  Téléphonez-nous
  Tenez-moi au courant
Facebook  
Instagram  
 4053 EMBOURG
430 000 €

Belle Maison 4 façades à l'abris des regards

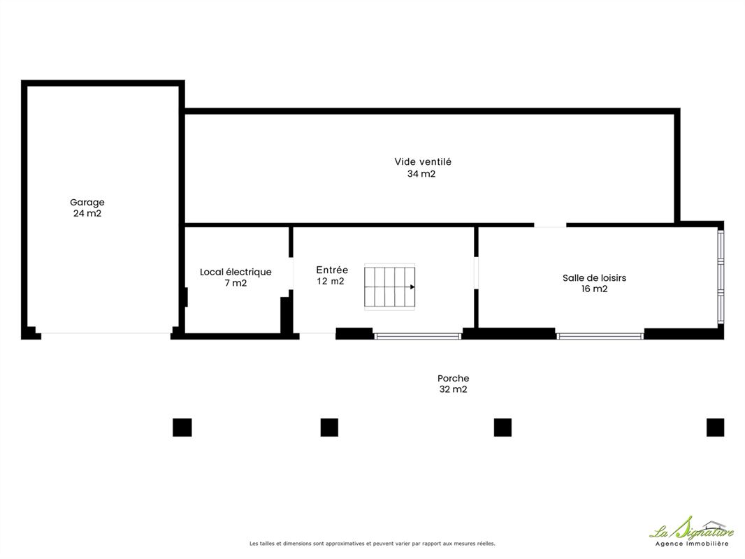
La Signature Immobilière vous propose cette charmante maison lumineuse de 3 chambres située dans le fond d'une rue en cul-de-sac à proximité du centre d'Embourg et des axes autoroutiers. Elle se compose comme suit: Rez-de-chaussée: un grand hall d'entrée, une chambre ou un bureau de 16m² (idéal pour une profession libérale), un local technique, un garage 1 voiture de 24m², grand vide ventilé de 34m²; 1er étage: un hall d'entrée donnant sur un grand séjour/salle à manger avec feu K7, une cuisine équipée ouverte sur le séjour avec accès direct à une agréable terrasse, un hall de nuit avec toilette indépendante, une salle de bain (baignoire/douche, meuble évier), deux chambres de 9 et 16m². Divers: État impeccable, allée avec portail, nombreuses places de parking, agréable terrasse avec jardin, PEB D n° 20250923008771, chauffage central au mazout, châssis PVC double vitrage. Plus de photos, plans et PEB à télécharger sur notre site internet WWW.LASIGNATURE.BE. Pour une visite ou une question, n'hésitez pas à nous contacter au 04/223.30.30
Revenu cadastral
 1118 €
Nombre de chambre(s)
 3
Nombre de salle(s) de bain
 1
Garage(s)
 1
Adresse
 Au Palô 36
4053 EMBOURG

Général

Superficie habitable
150 m²
Superficie living
42 m²
Superficie totale
160 m²
Superficie terrain
1062 m²

Confort/Equipements

Chauffage
C.C. au mazout
Type de toit
Toit plat
Couverture de toit
Roofing
Cuisine
Entièrement équipée
Vitrage
Double
Type de vitrage
pvc

Composition

  • Hall d'entrée:12 m2
  • Local:7 m2
  • Chambre à coucher 1:16 m2
  • Vide Ventilé:34 m2
  • Garage:24 m2
  • Hall d'entrée:9 m2
  • Living:42 m2
  • Cuisine équipée:9 m2
  • Hall de nuit:9 m2
  • Toilette 1:1 m2
  • Salle de bains 1:6 m2
  • Chambre à coucher 2:16 m2
  • Chambre à coucher 3:9 m2

Informations transmises sous réserve d’erreurs et non contractuelles.

Certificat energétique

PEB n°
20250923008771
E spec
319 kWh/m² par an
E total
47838 kWh/an
Emission CO2
79 Kg co2/m² par an



Informations financières

Héritages
Non

Street view

Google map