Téléphone
  Expertise
  Contactez-nous
  Téléphonez-nous
  Tenez-moi au courant
Facebook  
Instagram  
 4053 EMBOURG
699 000 €

Grande Maison 7 chambres située dans les parcs d'Embourg

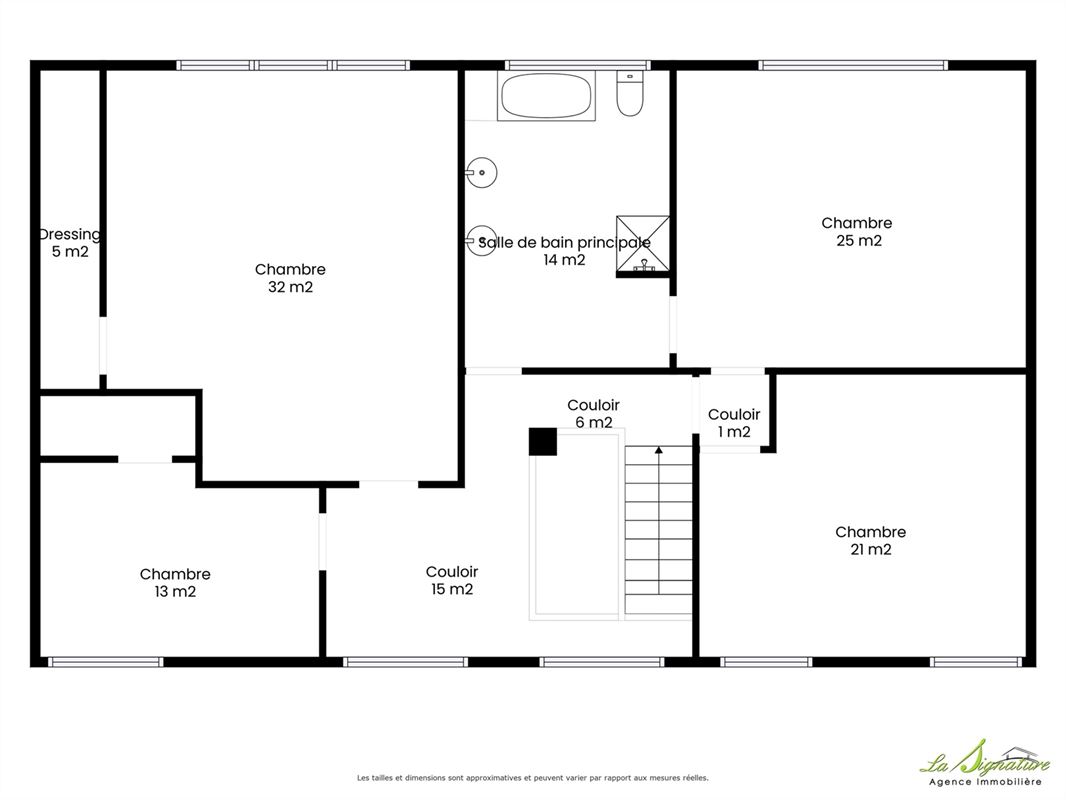
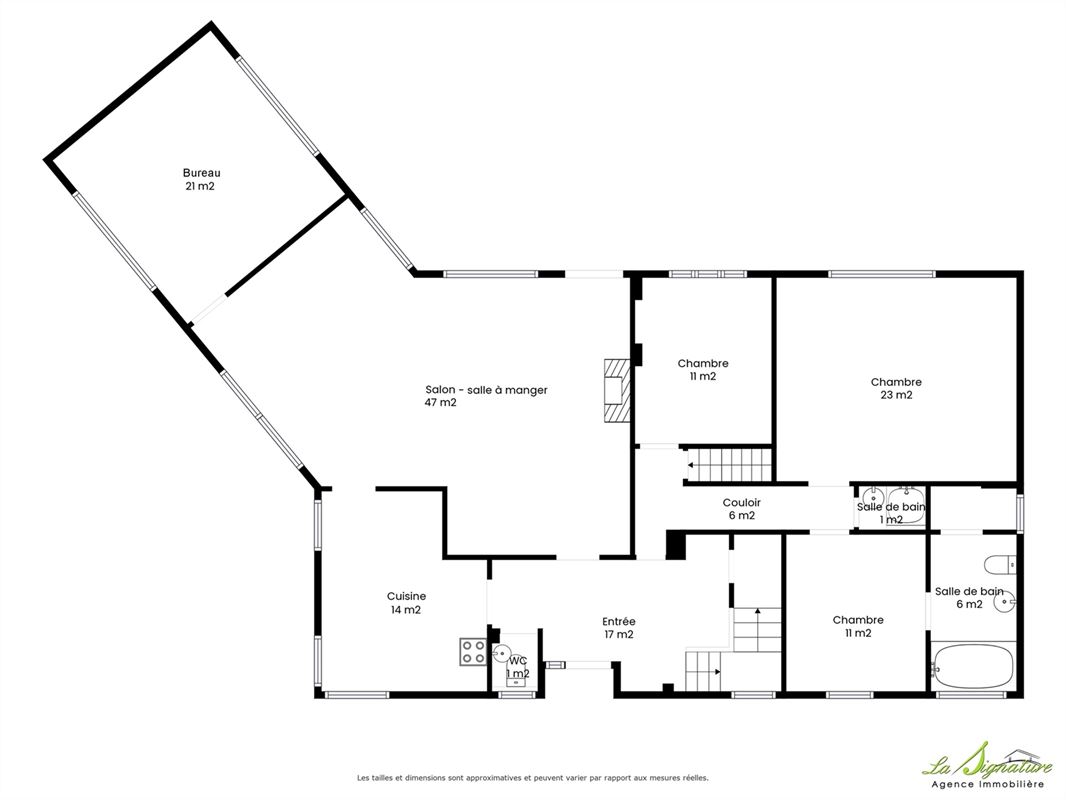
La Signature Immobilière vous présente cette grande villa 7 chambres idéalement située dans le quartier recherché des Parcs d'Embourg. Elle se compose comme suit: Rez-de-chaussée: un grand hall d'entrée avec toilette indépendante, un grand séjour de 47m², un bureau, une cuisine, un hall de nuit donnant accès à 3 chambres et une salle de bain (idéal pour une profession libérale); 1er ÉTAGE: un grand hall de nuit, 4 grandes chambres, une seconde salle de bain(baignoire, douche, évier et wc); Sous-sol: un grand garage de 51m², deux caves. Divers: Maison idéalement située avec de très grands volumes, grande terrasse, PEB F n° 20240712008109, châssis bois simple vitrage, volets partout, chauffage central au mazout, travaux à prévoir. Pour une question ou une visite, n'hésitez pas à nous contacter au 04/223.30.30 ou WWW.LASIGNATURE.BE
Revenu cadastral
 3041 €
Nombre de chambre(s)
 7
Nombre de salle(s) de bain
 3
Garage(s)
 1
Adresse
 Avenue du Parc 65
4053 EMBOURG

Général

Superficie habitable
359 m²
Superficie living
47 m²
Superficie totale
359 m²
Superficie terrain
1226 m²
Année de construction
1965

Confort/Equipements

Chauffage
C.C. au mazout
Type de toit
Toit en mansarde
Couverture de toit
Autres
Cuisine
Armoires et appareils
Vitrage
Simple
Type de vitrage
bois

Composition

  • Hall d'entrée:17 m2
  • Salon :47 m2
  • Bureau:21 m2
  • Hall de nuit:6 m2
  • Chambre à coucher 1:11 m2
  • Chambre à coucher 2:23 m2
  • Chambre à coucher 3:11 m2
  • Salle de bains 1:6 m2
  • Cuisine:14 m2
  • Hall de nuit:22 m2
  • Chambre à coucher 4:32 m2
  • Dressing:5 m2
  • Chambre à coucher 5:13 m2
  • Chambre à coucher 6:25 m2
  • Chambre à coucher 7:21 m2
  • Salle de bains 2:14 m2
  • Cave:10 m2
  • Garage:51 m2
  • Cave à provisions:8 m2

Informations transmises sous réserve d’erreurs et non contractuelles.

Certificat energétique

PEB n°
20240712008109
E spec
510 kWh/m² par an
E total
207943 kWh/an
Emission CO2
127 Kg co2/m² par an



Informations financières

Héritages
Non

Street view

Google map