Téléphone
  Expertise
  Contactez-nous
  Téléphonez-nous
  Tenez-moi au courant
Facebook  
Instagram  
 4690 BASSENGE
525 000 €

Maison COUP DE COEUR

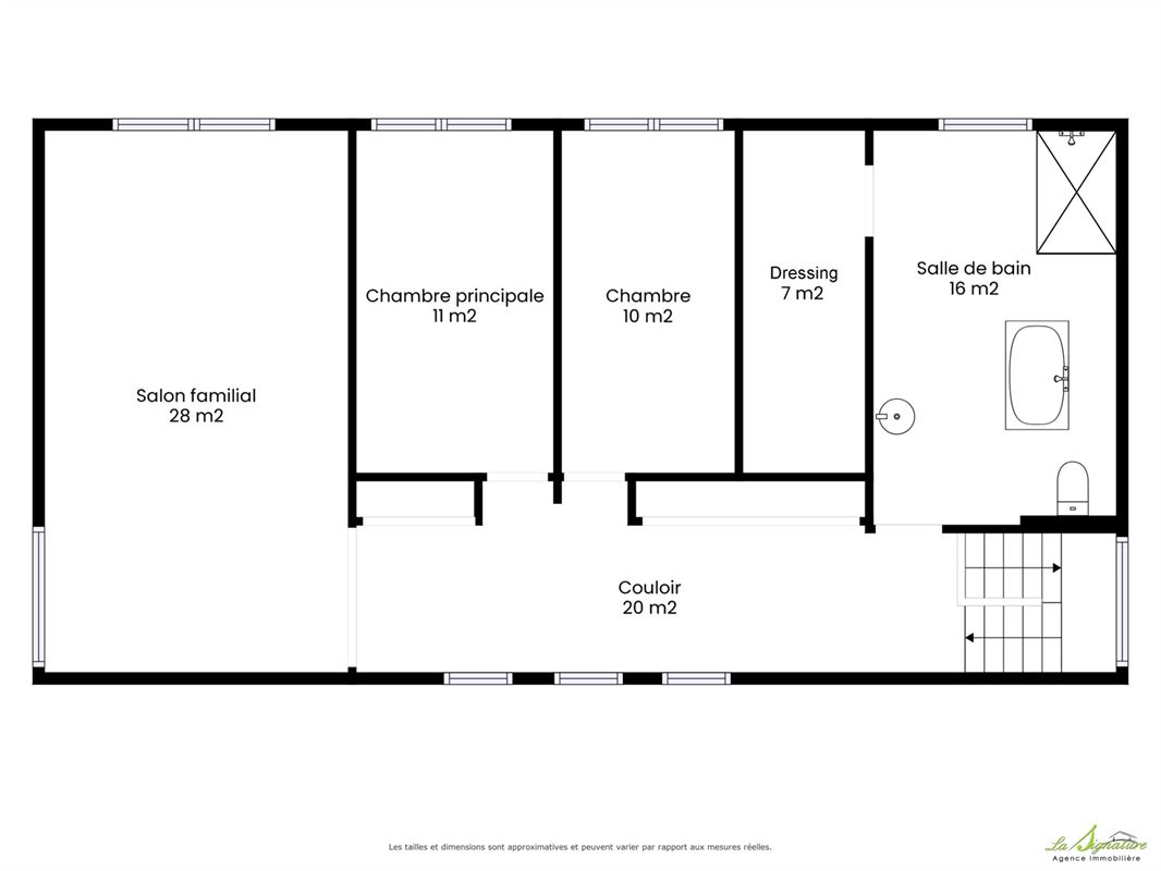
La Signature Immobilière vous présente cette maison 3 chambres avec garage et jardin - Ce bien COUP DE COEUR au style contemporain vous offrira un cadre de vie hyper lumineux et des espaces de vie très agréables - Il se compose comme suit : REZ-DE-CHAUSSÉE : Hall d'entrée - Toilette séparée - Salle à manger (34m²) - Cuisine ouverte (21m²) avec accès direct à la buanderie - Spacieux salon (39m²) donnant sur la terrasse et le jardin - Garage aménagé en espace de rangement - PREMIER ÉTAGE : Hall de nuit avec dressing sur mesure - Chambre 1 (28m²) - Chambre 2 (11m²) - Chambre 3 (10m² ou 17m² moyennant aménagent) - Salle de bain avec dressing - EXTÉRIEURS : Agréable jardin orienté au SUD (arboré et clôturé) - Portail électrique - Potager - Poulaillier - Abri de jardin avec porte électrique - DIVERS : Grenier rangement - 24 panneaux photovoltaïques - Borne de recharge pour véhicule - 2 poêles à pellets - Pompe à chaleur (chaud/froid) au 1er étage - Nouveau châssis aluminium coulissant au rez-de chaussée et châssis PVC triple vitrage - Faible consommation d'énergie - PEB : B n°20250401025775 - Citerne d'eau de pluie pour arrosage extérieur - Micro station d'épuration - A VOIR!!! - Pour plus d'informations, n'hésitez pas à nous joindre au 04/223.30.30.
Revenu cadastral
 1270 €
Nombre de chambre(s)
 3
Nombre de salle(s) de bain
 1
Garage(s)
 1
Adresse
 Rue d'Once 53
4690 BASSENGE

Général

Superficie habitable
233 m²
Superficie living
73 m²
Superficie totale
233 m²
Superficie terrain
1270 m²
Largeur façade
15 m
Largeur terrain
40 m
Année de construction
2011

Confort/Equipements

Chauffage
Pellet
Orientation façade arrière
Sud
Type de toit
Toit en mansarde
Couverture de toit
Tuiles
Cuisine
Entièrement équipée
Vitrage
Double
Type de vitrage
alu

Composition

Non communiqué

Informations transmises sous réserve d’erreurs et non contractuelles.

Certificat energétique

PEB n°
20250401025775
E spec
114 kWh/m² par an
E total
30496 kWh/an
Emission CO2
21 Kg co2/m² par an



Informations financières

Héritages
Non

Street view

Google map