Téléphone
  Expertise
  Contactez-nous
  Téléphonez-nous
  Tenez-moi au courant
Facebook  
Instagram  
 4130 ESNEUX
330 000 €

VENDU!! Maison 4 façades sur les hauteurs de Méry

OPTION!! La Signature Immobilière vous propose cette charmante maison 4 façades sur les hauteurs de Méry. Elle se compose comme suit: Rez-de-chaussée: grand hall d'entrée, un salon avec magnifique vue sur la vallée, une cuisine semi-équipée, une salle à manger; 1er Étage: Un hall de nuit, deux grandes chambres dont une avec bureau ou dressing de 9m², une salle de bain (baignoire/douche, évier); Rez-de-jardin: un garage de 19m² et une cave de 12 m² donnant directement accès au jardin; Sous-sol -1: un pièce chaufferie et une cave: Sous-sol -2: deux caves. Divers: magnifique vue sur la vallée, terrain de 578m², PEB G n° 2016079001516, chauffage central au mazout, châssis PVC double vitrage et châssis bois simple vitrage. PLUS DE PHOTOS ET PLANS DISPONIBLES SUR NOTRE SITE WWW.LASIGNATURE.BE. Pour une question ou une visite, n'hésitez pas à nous contacter au 04/223.30.30 ou WWW.LASIGNATURE.BE
Revenu cadastral
 761 €
Nombre de chambre(s)
 2
Nombre de salle(s) de bain
 1
Garage(s)
 1
Adresse
 Avenue des Bois 6
4130 ESNEUX

Général

Superficie habitable
141 m²
Superficie living
15 m²
Superficie totale
185 m²
Superficie terrain
578 m²
Année de construction
1935

Confort/Equipements

Chauffage
C.C. au mazout
Type de toit
Toit en mansarde
Couverture de toit
Tuiles
Cuisine
Tout encastré
Vitrage
Partiellement double, partiellement simple
Type de vitrage
pvc

Composition

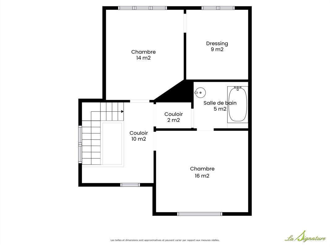
  • Hall d'entrée:12 m2
  • Salle à manger:17 m2
  • Cuisine semi-équipée:10 m2
  • Salon :15 m2
  • Hall de nuit:12 m2
  • Chambre à coucher 1:14 m2
  • Chambre à coucher 2:16 m2
  • Dressing:9 m2
  • Salle de bains 1:5 m2
  • Chaufferie:9 m2
  • Cave:9 m2
  • Cave:24 m2
  • Garage:19 m2
  • Cave:12 m2

Informations transmises sous réserve d’erreurs et non contractuelles.

Certificat energétique

PEB n°
2016079001516
E spec
556 kWh/m² par an
E total
72457 kWh/an
Emission CO2
138 Kg co2/m² par an



Informations financières

Héritages
Non

Street view

Google map