Téléphone
  Expertise
  Contactez-nous
  Téléphonez-nous
  Tenez-moi au courant
Facebook  
Instagram  
 4020 LIÈGE
1 090 000 €

Immeuble de rapport en ordre urbanistique

La Signature Immobilière vous propose ce magnifique immeuble de rapport en ordre urbanistique dans le quartier des Vennes. Il se compose comme suit: Rez-de-chaussée: une surface commerciale avec deux garages privatifs; 1er ÉTAGE: un appartement 3 chambres avec grand séjour, une salle de bains et une cuisine équipée (PEB B n° 20220826010525); 2ème ÉTAGE: un grand appartement 3 chambres avec un grand séjour, cuisine équipée et une salle de bains (PEB B n° 20220826010672); 3èm ÉTAGE: un appartement 4 chambres avec deux salles-de-bains, un séjour actuellement (PEB B n° 20220826010750). Divers: Loyer locatif de 4722€/mois, chauffage central au gaz, châssis PVC double vitrage, tous les compteurs sont séparés, plus de photos et plans disponibles sur notre site internet WWW.LASIGNATURE.BE. Pour une question ou une visite, n'hésitez pas à nous contacter au 04/223.30.30
Nombre de chambre(s)
 10
Nombre de salle(s) de bain
 4
Garage(s)
 2
Adresse
 Rue Hubert Désamoré 36
4020 LIÈGE

Général

Superficie habitable
360 m²
Superficie living
29 m²

Confort/Equipements

Chauffage
C.C. au gaz
Type de toit
Non communiqué
Cuisine
Entièrement équipée
Vitrage
Double
Type de vitrage
pvc

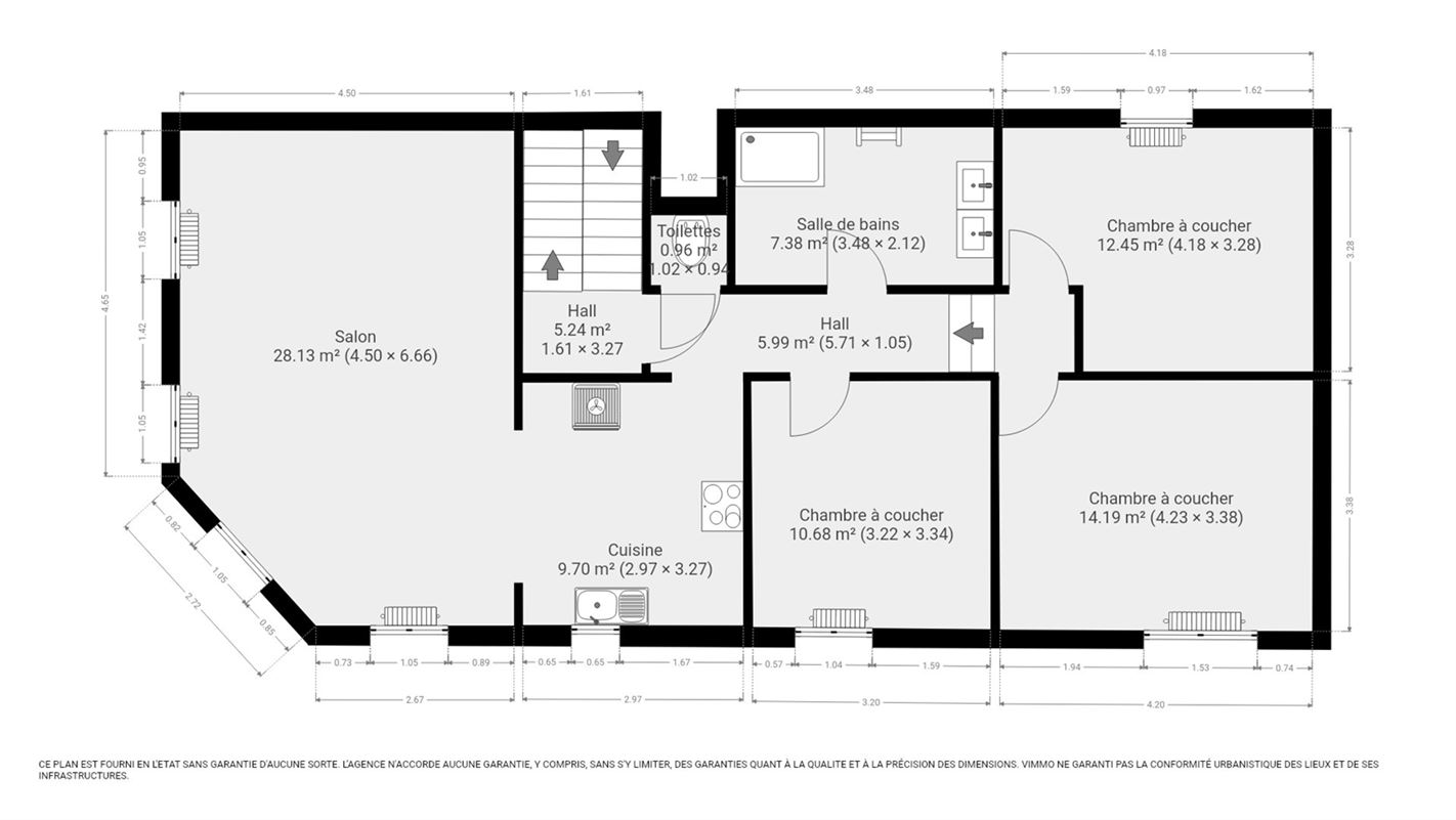
Composition

  • surface commerciale avec garage:90 m2
  • Hall d'entrée:5.2 m2
  • Toilette 1:1 m2
  • Hall de nuit:5.99 m2
  • Living:28.13 m2
  • Cuisine équipée:9.67 m2
  • Chambre à coucher 1:10.66 m2
  • Chambre à coucher 2:12.45 m2
  • Chambre à coucher 3:14.17 m2
  • Salle de bains 1:7.38 m2
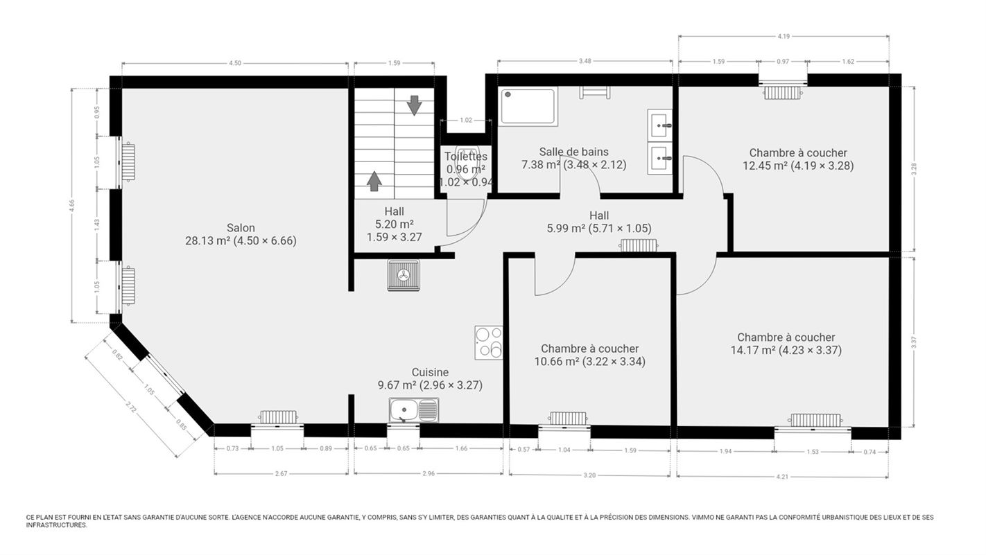
  • Hall d'entrée:5.2 m2
  • Toilette 1:1 m2
  • Living:28.13 m2
  • Cuisine équipée:9.67 m2
  • Hall de nuit:5.99 m2
  • Chambre à coucher 1:10.66 m2
  • Chambre à coucher 2:14.17 m2
  • Chambre à coucher 3:12.45 m2
  • Salle de bains 1:7.38 m2
  • Hall d'entrée:6.02 m2
  • Living:23.09 m2
  • Salle de bains 1:4.44 m2
  • Salle de bains 2:4.76 m2
  • Chambre à coucher 1:16.18 m2
  • Chambre à coucher 2:10.65 m2
  • Chambre à coucher 3:12.46 m2
  • Chambre à coucher 4:14.96 m2

Informations transmises sous réserve d’erreurs et non contractuelles.

Certificat energétique

PEB n°
20220826010750
E spec
116 kWh/m² par an
E total
12818 kWh/an
Emission CO2
22 Kg co2/m² par an



Informations financières

Héritages
Non

Street view

Google map